 
 
                宇都宮市中戸祭町/新築建売物件(アーネストワン)
アーネストワンの新築建売
物件購入費用はお尋ねください。
リノベ費用 約300万円(施主のセルフリノベ含む)
工期 実質3ヶ月 
物件購入からリノベーションにいたるまで
 
当社から徒歩5分圏内の住宅地としてもなかなか得難い中戸祭町エリアに小さく区切られた建売物件分譲が始まったのは今年の春頃。販売スタート価格は2600万円程度だったと記憶しています。
42坪程度の土地がネックとなったか、建売としては高価格帯となってしまったのかなかなか販売が思うように進まない初夏の頃。値下げも進み2300万円まで進んだところで、ようやく買い手がつき、しかしながらローンの不調などでキャンセルが続き、その結果募集価格もさらに値下げに。ここはやはり買い時です。全てに満足できる物件はまず存在しません。不動産物件探しが予算との関係も合わせて妥協の産物であることを納得できれば、そこですぐに決断して申込書にサインです。何しろ物件は1つしかないのです。
宇都宮市中戸祭町
アーネストワンの新築建売
リノベ費用 約300万円/施主のセルフリノベ含む(税抜)
工期 実質3ヶ月
 
              
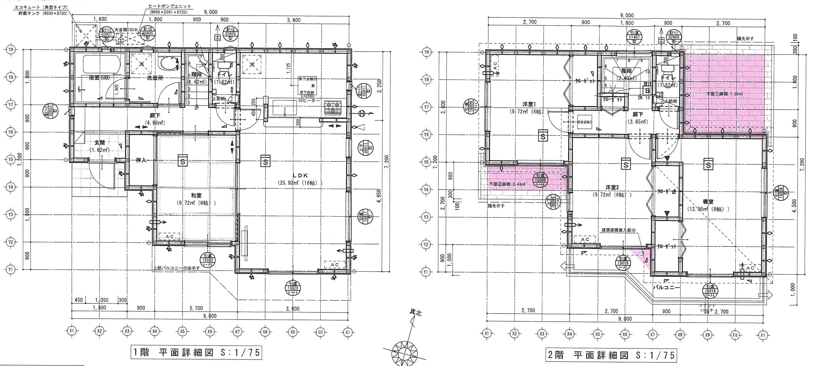
リノベDATA
| 大工工事: | 1F和室撤去開口リビング一体化、キッチン袖壁撤去、押入れ利用のWIC新設 | 
|---|---|
| 内装ドア: | リビングドア、トイレ、洗面化粧室ドア交換、クローゼット新設 | 
| 壁、天井: | クロス張り替え、一部タイル仕上げ、漆喰仕上げ(セルフ) | 
| 床: | 塩ビタイル、無垢フローリング施工(リビング) | 
| バス: | 既存のものをそのまま使用 | 
| 洗面: | 既存ものを撤去、洗面化粧台下部ユニットを交換、鏡、キャビネット新設 | 
| キッチン: | キッチン交換/背面キャビネットユニット追加設置 | 
| トイレ: | 既存ものをそのまま使用 | 
| 照明: | ダウンライト、ダクトレール、スポットライト | 
| アクセサリー他: | ウッドデッキ(人工木)、日陰シェード、コンセント増設、 大型TV用壁面設置ブラケット | 
 
 
                 
 
                以前の状況→リノベプランの概要
4〜5人暮らしの4LDKを確保するのが建売住宅のお決まりパターンです。
私たち家族の使い方には和室は不要で、細かい間仕切りも不要です。6畳の和室を押入れと続いたWICとLDKに続いた壁掛けTVルームにしました。
床の仕上げは奥様の希望で無垢フローリングに、壁は白いしっくいを家族で塗りました。建材メーカーの建具やクロスその他の塩ビ素材ばかりでは味気ないのです。本物の素材感が少しでもプラスされるといい雰囲気になりますね。
2、このエリアにおける希少性
このエリアは土地の情報が少ないというのは仕事上知っています。情報が出ても、50坪程度で土地が1500万円~2000万円以上も十分あります。
 
3、購入に至るまでのいきさつ
この建売情報は前から知っていた物件情報ではあったのですが、42坪しかない土地と建売物件としての価格がネックだったのか売れ残っていました。それが現実的な金額に値下げをしてきたので、当初、旧知のお客さんに購入をオススメしました。その方は一度は検討したものの購入申込の直前で、家族内の調整がつかずあきらめることに。
この価格まで下がって他に取られてしまってはあまりにも惜しい物件価格。そして自分で購入する考えがよぎります。
 私たち家族は私の職場が1Fにある古い賃貸マンションの4階をリノベして住んでいました。この先も家は持たずに、仕事や生活に便利なこの賃貸生活で十分と考えていたのです。
 それからその発想を急転換です。購入の決断まで何日も取れません。しかし、この物件の購入を人に薦めたわけで重要ポイントはすでに抑えています。
早い決断の決め手となったのは 
1、今の家賃と変わらないこと。
2、子供が小学校を転校せずに生活のスタイルがほぼ変わらないこと。
3、この先、万一の時には売れると容易に想像できること。
です。
 
4、リセールバリューのこと
決め手になった3の話です。
これは住宅購入における落とし穴といっても良いでしょう。
購入した時に高額だと資産価値もそれなりにあると考えるのは間違いです。所有者の思い込みに近いものです。
結局のところ資産価値とはその時にいくらで売れるのかという他人(買いたい人)の判断によるものでしかありません。
4500万円の注文住宅を15年後に2500万円で売るのは なかなか難しく、
2500万円の新築建売を15年後に1500万円で売ることは普通にできるのです。
売る時は中古市場での売買だからです。
中古市場には1500万円なら中古を買っても良いという購入層はそれなりにいるのです。
2500万円で中古を買いたいという購入層はあまりいません。
なぜなら2500万円前後でそれなりの新築建売が買えるのです。中古で売れる価格帯はある程度相場が決まっていて、当時いくら高級なものであったとしても今現在は中古なのです。
 
これも建売購入の大きなメリットであり決め手となります。
安い建売物件では大きなローンも作らずに売却時の目減りも少なく、将来的な売却もしやすいという安心感を与えてくれます。
いくら大きなローンが組めたとしても、換金が難しくその後の生活の自由に縛りが出てくるようではそれは大きなお荷物(負債)に過ぎないのです。
 
 
 
5、新築建売をリノベーションすることのメリット
最初から安っぽいところや気に入らないところはリノベーションすればいいと考えていました。
一般普及品で新建材を組み合わせハリボテのように作られたお決まりパターンの規格品ではありますが、300万円の予算を確保して内装を好きなように変えました。
新築なのに再工事なんだか勿体無い気もしますが、半分注文住宅のような愉しみもあります。
できあがってみると廉価規格品の組合せとは全く異なる見栄えになりました。
 
新築リノベは予算に合わせてやりたい部分だけを工事することができます。
基本的に補修する必要がないからです。
一方、中古リノベは老朽化したり傷んだりと補修必要な箇所が少なからずあります。リノベ費用は補修費用を含むため当然上がります。
 
6、結局のところ総額費用は?
物件購入価格2200万円+リノベ費用300万円=2500万円
予算に余裕があったり、なかったりすればリノベの費用を調整すればいいですね。
 
比較1、この同エリア内で50坪程度の土地を購入、住宅メーカー等で4LDKの家を建てた場合
  1600万円(土地)+2500万円〜(建物)=4100万円〜(合計)
 (外構工事や消費税、諸費用は除く)
 
比較2、少しグレードの高い建売物件にした場合
  土地建物合計 3500万円〜(合計)
 
お金が余って仕方ないほどの余裕があれば、もちろん立派でいい家を求めることができますが、相当な高額となってしまいます。
50歳で住宅ローンを組んで購入する私たちの住宅計画はこれで十分だったし、費用の対価と考えれば納得できる結果と言えます。
 
家内も家なんか上を見ればきりがないけれど、「新築建売+リノベ」は大いにありだと言う結論に至りました。できあがった内装にもそれなりに満足できたようです。
半分自分たちで実験台になったようなところもありますが、お客さんにも安心して納得してオススメできる一例と思います。
 
少しだけ余裕がでたのでちょっと高かったお気に入りのソファも買えました。
まだまだ揃ってない家具もありますが、少し予算に余裕が出たのでこの先愉しみながら気に入ったものを探していこうと思っています。
 
7、今後の計画。いつか売ることも。
現在妻と小学生の息子との3人暮らしです。
今回しっくい塗りやタイル貼りなど家族でのセルフリノベも結構やったので今後も気になったところを愉しみながら手を入れていこうと思っています。
おそらく15年もすれば息子も大学も卒業し、その後は家に戻ってくることもないのでしょう。
その時は売却時だろうとおぼろげに考えています。
年齢も60を越えて次は2人でゆっくり住めるマンションやどこかへ移住なんかも考えているかもしれませんね。
気になる15年後の売却価格はいくらになっていることでしょう。
将来のことでわからないとはいえ、少なくとも今回の20年ローンで払っていった残債の以上の価格にはなると容易に予想できます。
(計算したら550万円くらいでした。このくらいの残高ならまずローンより安くなることはないでしょう。)
しかし、大きなローンを組んで立派な家を売ろうと思ったらこう簡単にはいかないはずです。
私たちはこの家に縛られていないという自由と安心感があるのです。
 
 
 
 
                 
 
                 
 
               
 
               
 
                  
 
                 
 
                  
 
                 
 
                  
 
                 
 
                  
 
                 
 
                  
 
                 
 
                 
 
                 
 
                  
 
                 
 
                  
 
                 
 
                  
 
                 
 
                  
 
                  
 
                  
 
                  
 
                  
 
                  
 
                  
 
                  
 
                  
 
                  
 
                  
 
                  
 
                 
 
                 
 
                  
 
                 
 
                 
 
                  
 
            
 
            
 
           